This page looks best with JavaScript enabled

Large Basement Floor Plans 1000 Sq Ft Excellent

 ·  ☕ 5 min read  ·  ❤️ Mr. Perry Mann

Large Basement Floor Plans 1000 Sq Ft Excellent

.

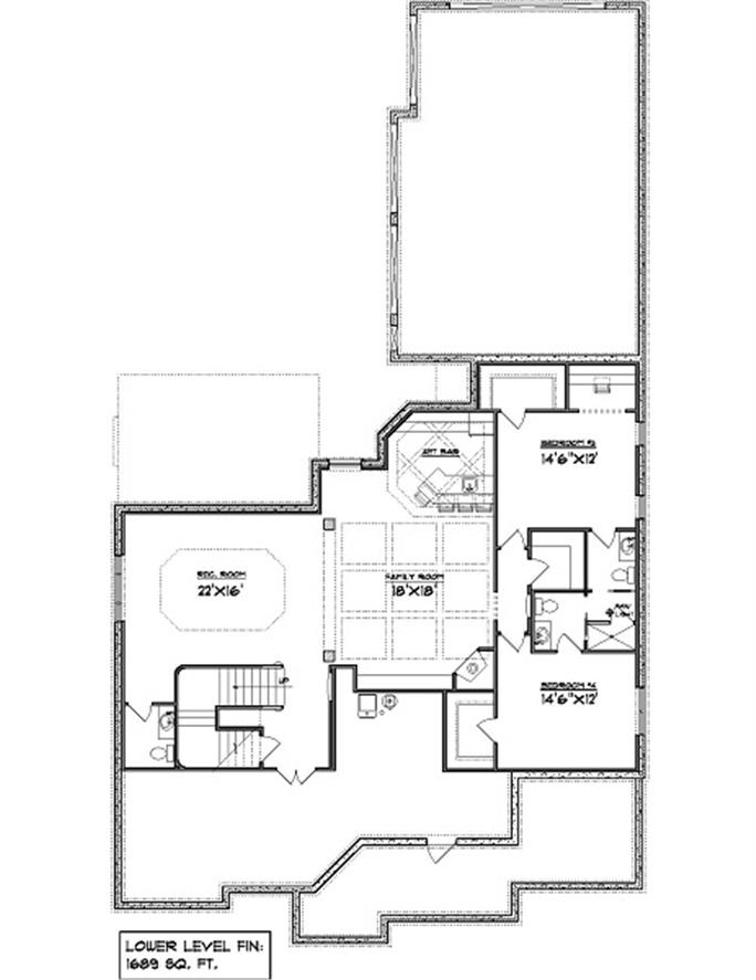
Plenty of space to create an awesome man cave. Our 1000 to 1100 sq foot house plans are the perfect size for the minimalist homeowner.


1000 Feet House Plans Awesome 3 Bed Room 1500 Square Feet ...
1000 Feet House Plans Awesome 3 Bed Room 1500 Square Feet ... from i.pinimg.com
Perhaps you have vacationed in a cottage and thought, this is actually big enough to live in! There are many other reasons why the tiny house trend has taken off, and they all tie back to the another reason why a lot of people are leaning towards tiny house plans under 1000 sq. Optional walk out basement plan image of lakeview house home.

Dream 1000 sq ft house & floor plans.

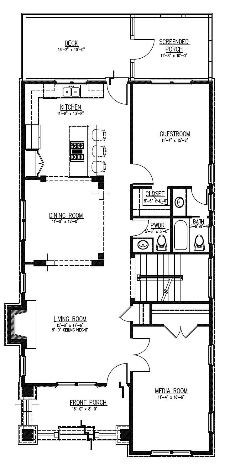
Best awesome 30x50 house plans east facing | house design east facing house vastu plan 30x50 image. Small cottage plans under 1000 sq ft google search house floor pin by lori pryor on my style square country home plan 2 bedrms baths 141 1230 terranean beds 1 140 ranch style house plan 2 beds 1 baths 1000 sq ft 25 4105 houseplans com. 13 perfect images 1000 sq ft floor plans house. The homes located in our 1,000 square feet and under offer a plethora of style, bedroom size and affordability. Our collection of house plans with finished basements includes detailed floor plans that allow the buyer to visualize the look of the entire house, down to the smallest detail. Mmh has a large collection of small floor plans and tiny home designs for 1000 sq ft plot area. This craftsman design floor plan is 1260 sq ft and has 3 bedrooms and has 2. <p>1000 sq ft house plan indian design. House plans 1000 sq ft 2 and 3 bedrooms. Perhaps you have vacationed in a cottage and thought, this is actually big enough to live in! You could have your excellent home floor plans while increasing your networth because they build your house. Inside, the home may be designed with the great room, dining area and kitchen open. While small house plans under 1000 sq. Our 1000 to 1100 sq foot house plans are the perfect size for the minimalist homeowner. So technically it's 1050 sq.ft. Best awesome 30x50 house plans east facing | house design east facing house vastu plan 30x50 image. The following pages of log home floor plans are copyrighted and may not be reproduced in any way, including photocopying for any reason, without the written permission of appalachian log structures. This information will make you think about house plan 1000 sq ft. This is a lot of space so you can do pretty much everything you want to do in here. Whether you intend to get a trendy building or you would like to develop home floor plans inside an attractive way, you need to have to get the latest tips. Discover collection of 15 photos and gallery about house plan 1000 sq ft at senaterace2012.com. Some find small house plans under 1000 sq ft to be just right for them. Basement floor plans 800 sq ft remodels in 2018. Find tiny 2 bedroom 2 bath home designs, 1 bedroom modern cottages &more! May these few inspiring images for your interest, maybe you will agree that these are newest photos. The information from each image that we get, including set size and resolution. However, not everyone wants a big house. We like them, maybe you were too. Related with house design category. There are many other reasons why the tiny house trend has taken off, and they all tie back to the another reason why a lot of people are leaning towards tiny house plans under 1000 sq. Log home floor plans 1300 to 1999 sq.

Share on
https://antarcticoffended.com/frtepxh4?key=e717486216bcba1c2dfdfbe9981956d6