This page looks best with JavaScript enabled

44 Farmhouse Floor Plans 3 Bedroom Wonderful

 ·  ☕ 5 min read  ·  ❤️ Dr. Mya Schinner

44+ Farmhouse Floor Plans 3 Bedroom Wonderful

.

When it comes to finding the perfect farmhouse floor plan, you want the ability to tweaking the features to exactly your liking. 3 bedrooms and 2 or.


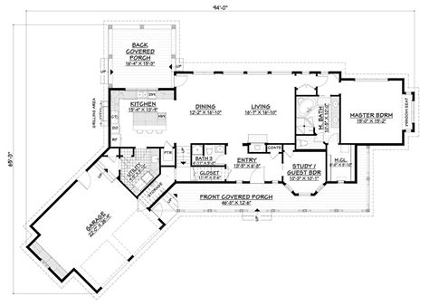
House Plan 3125-00013 - Modern Farmhouse Plan: 2,556 ...
House Plan 3125-00013 - Modern Farmhouse Plan: 2,556 ... from i.pinimg.com
Four or more rooms can be too grandiose in design for a particular family, which ends up with a disused spare room and a monstrous mortgage. These plans come in various floor plan types but are more frequent as 1½ or two story floor plans; Parents and two children a couple with an elderly parent and perhaps a caretaker an individual who needs an office and room for guests and on and on.

This farmhouse design floor plan is 2201 sq ft and has 3 bedrooms and has 2.5 bathrooms.

Garage loft plans three car plan with future guest quarters 006g 0124 at thegarageplan. 1 and 2 bedroom home plans may be a little too small, while a 4 or 5 bedroom design may be too expensive to build. This farmhouse design floor plan is 2201 sq ft and has 3 bedrooms and has 2.5 bathrooms. When it comes to finding the perfect farmhouse floor plan, you want the ability to tweaking the features to exactly your liking. Loft floor plans 3 bedroom. Monster house plans has a diverse collection of farmhouse plans to select from. Our perfect modern farmhouse cottage w/ 3 bed 2 baths under 1500sqft!take a tour of adhouseplans modern farmhouse plan 16920wg in all of it's stunning. Do you remember visiting a farm and admiring the our award winning residential house plans, architectural home designs, floor plans, blueprints and home plans will make your. This plan is not an open floor plan as in most modern designs with the hallway that adjoins the bedrooms and the living area, it is bound to you can actually access building plans 3 bedroom house 3d to get a more realistic feel of what your home might be. Dreaming to own a 3 bedroom bungalow house? Bedrooms 1 bedroom 2 bedroom 3 bedroom 4+ bedrooms. Three bedroom house plans also offer a nice compromise between spaciousness and affordability. Four or more rooms can be too grandiose in design for a particular family, which ends up with a disused spare room and a monstrous mortgage. The floor plan is an open living floor plan with the living room, dining and kitchen all open to each other. Browse our large collection of farmhouse style house plans. Do plenty of research and you will. The best 3 bedroom house floor plans with attached garage. The classic white farmhouse feels like part. Kitchen islands are becoming more and more. A farmhouse will almost always be a country style. Browse a frame, cabin, modern farmhouse, country, 2 bath & more open. The vintage farmhouse ii > see the floor plan. Our 3 bedroom house plan collection includes a wide range of sizes and styles, from modern farmhouse plans to craftsman bungalow floor plans. 4 bedrooms, 2 baths, 2356 sq. Beautiful 3 bedroom craftsman farmhouse featuring open floor plan, 1,988 s.f. Craftsman house plan with main floor game room and bonus over garage. A list of building supplies needed to construct the infrastructure of your new house. The answer is here, the floor plan consists of 3 bedrooms and the basic parts of a complete house. This marvelously designed craftsman farmhouse is the perfect blend of luxury and comfort, great for a new or growing family. 4 bedrooms, 2 baths, 2674 sq. 3 bedrooms and 2.5 bathrooms are found in.

Share on
https://antarcticoffended.com/frtepxh4?key=e717486216bcba1c2dfdfbe9981956d6